Hillsdale Screen House
- Completed:
- 2010
- Team:
- Lea H. Cloud
Victoria A. Rospond
Jonathan Dreyfous
Peter Girzone
Gloria Kim
Anke Roggenbuck
Kelly Barlow
- Location:
- Hillsdale, NY
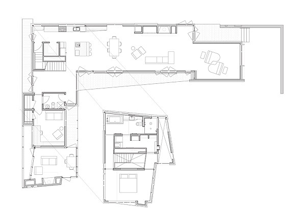
The Hillsdale House is a weekend getaway in upstate New York on the last eastern ridge overlooking both the Berkshires and the Catskills. The approach to the site is heavily veiled, allowing no hint of the views that are about to be revealed. CDR Studio's response to this dramatic site was to continue the screening effect, revealing the view gradually throughout the house. As the scheme developed, we sought to further mediate the long, expansive views by contrasting them with views of the more intimate courtyard landscape to the south.
The house is an "L" shape holding the north and west sides of the courtyard. A white cedar rainscreen skins the house and peels off to create the wood fencing of the south and east sides of the courtyard. Exterior sliding shutters, constructed as solid rain screen, allow the house to be closed down when the owners are away. The landscape within the courtyard will be a tended garden, and all else outside the courtyard walls will return to a more raw and natural state.
The two-story core of the house holds the bedrooms, bathrooms and kitchen with single-story public spaces extending from it — a screened-in porch to the south and a large dining and living space to the east. Exterior porches transition and extend the interior living spaces out into the landscape. The eastern end of the living space culminates in a music room, an amateur passion of the clients. The house is sited to take advantage of natural solar heating gains; it's highly insulated and incorporates solar hot-water panels for radiant-floor heating, solar photovoltaic panels to generate electricity and recycled materials throughout the interiors.